Как провести межевание земельного участка в долевой собственности
В некоторых случаях владельцы общего земельного надела встают перед необходимостью его разделения. Тогда на помощь собственникам приходят кадастровые инженеры, наделенные правами по межеванию земельных участков. Это делается для того, чтобы каждый из хозяев смог определить границы именно своей части, а также присвоить ей индивидуальный кадастровый номер и уникальный адрес. Так как же проводится межевание земли, которой владеет 2 и более лиц?
Цели межевания: зачем это нужно
Так, после проведения размежевания каждая из частей некогда общего надела может:
- перейти к другому собственнику путем дарения;
- перейти к другому собственнику путем продажи;
- перейти к другому собственнику в процессе раздела имущества (например, при разводе бывших супругов);
- сменить свое целевое назначение и пр.
Границы основного участка, внутри которого осуществляется размежевание, остаются неизменными. Выделение частей происходит на основании тех параметров, которые указываются в официальных документах на право владения долями участка. При этом инженеры, осуществляющие межевание, могут незначительно отступать от приведенных значений, ведь им необходимо учитывать свойства и характерные особенности почвы.
Порядок межевания территории
Сначала человеку, взявшемуся за разделение участка, потребуется получить от всех совладельцев земли разрешение на проведение инженерных работ и на «дробление» общей земельной площади. Добровольное согласие всех заинтересованных в деле субъектов – обязательное условие для осуществления межевания.
Если один или несколько долевых собственников не согласятся на разделение надела, конфликт удастся разрешить в суде. Выбор инстанции будет зависеть от цены иска. Если она не превысит 50 000 руб., то обращаться понадобится в мировой суд. При цене иска свыше 50 000 руб. отправляться нужно в районный суд.
Как составляется соглашение долевых собственников
Согласие долевых собственников должно быть юридически зафиксированным. Документ составляется в письменной форме и закрепляется подписями всех лиц, владеющих общим земельным участком. Здесь понадобится отразить, что решение о размежевании участка было принято на добровольных и обоюдных началах.
В соглашении указывается следующая информация:
- дата и место составления бумаги;
- перечисление всех участвующих субъектов (ФИО, даты рождения, данные паспортов, адреса регистрации);
- описание исходного объекта общего пользования (земельный участок с указанием его кадастрового номера, адреса, площади и назначения);
- основные положения заключаемого соглашения (договоренность о проведении раздела земельного участка, перечисление долей, пункт об изменении права собственности, порядок покрытия расходов и пр.);
- подписи сторон.
Соглашение не требуется заверять у нотариуса – оно обретает полную юридическую силу с момента подписания. Однако сторонам понадобится проконтролировать, чтобы в соглашении указывался факт прекращения права долевой собственности – в противном случае даже после проведения размежевания и разделения земли новые участки также поступят в общую, а не в индивидуальную собственность.
Определение долей и площадей: сколько и на кого
Иными словами, если после проведения межевания выяснится, что выделенная земля не соответствует минимальному показателю площади, государственный орган откажет заявителю в регистрации права собственности и постановке на кадастровый учет. При этом привлечь к ответственности инженеров, которые якобы должны были определить недостаточность территории, будет нельзя. Специалисты призваны оказывать услугу межевания по желанию заказчика, но не обязаны консультировать его по различным правовым вопросам.
Так как межуемая площадь рассчитывается пропорционально имеющимся долям, участникам процесса понадобится обратиться к ранее составленному договору купли-продажи земельного участка (или к любому другому правоустанавливающему документу). Обычно именно здесь указывается, какая доля закрепляется за каждым из собственников. Если же положение о разделении долей отсутствует, то в соответствии со ст. 245 ГК РФ доли собственников признаются равными.
Выбор кадастрового инженера
Выбор подрядчика, который будет проводить размежевание общей территории, целиком и полностью ложится на плечи самих собственников. Поэтому так важно не ошибиться и выбрать ответственного геодезиста. Специалист такого типа может выступать от лица индивидуального предпринимателя или юридической фирмы, с которой у него заключен трудовой договор. Чтобы обезопасить себя от возможного непрофессионализма, человек может проверить кадастрового инженера и/или его фирму следующим образом:
Действие | Описание |
|---|---|
Получить информацию из государственного реестра кадастровых инженеров, расположенного на официальном сайте Росреестра. | Здесь собраны данные обо всех российских специалистах, которые в настоящий момент имеют аккредитацию на проведение профильных работ. |
Запросить у геодезиста лицензию, разрешающую ему осуществлять межевание. | Заказчику следует потребовать предъявления данного документа еще на том этапе, когда будет заключаться договор об оказании услуг с подрядчиком. |
Ознакомиться с персональными отзывами других заказчиков. | Подобные отзывы в большом количестве представлены в Интернете. |
Межевые работы: процесс
Проведение межевых работ начинается с того, что геодезист запрашивает у заказчика исчерпывающие сведения о земельном участке. Важность для инженера имеют следующие показатели:
- Размер надела, подлежащего межеванию.
- Статус земель, на которых находится участок.
- Статус населенного пункта (город, поселок и т.д.).
- Назначение земель и пр.
Далее специалист проводит геодезическую съемку межуемой территории и соотносит все имеющиеся в его распоряжении данные: границы основного участка, его поворотные точки, отличительные признаки ландшафта, координаты новых межей на основании долей или личного пожелания собственников. Если какие-либо положения вызывают у самого геодезиста или собственников сомнения и вопросы, проводятся дополнительные расчеты.
Необходимо, чтобы каждый выделяемый участок соответствовал следующим требованиям:
- Имел выход к дороге общего назначения.
- Был правильной формы.
- Не пересекался с соседними участками (в т.ч. и с территорией/территориями бывших совладельцев).
Только после исчерпывающего анализа всех данных инженер составляет межевой план, а также выезжает к месту расположения земли, чтобы установить новые границы в натуре (расставить межевые знаки) и получить подписи всех заинтересованных сторон. Обычно рабочий процесс затягивается на срок до 2-3 недель.
Регистрация нового адреса
Человек, инициирующий процесс размежевания (т.е. заказчик геодезических работ), фактически становится правообладателем нового земельного участка. Он автоматически перестает быть долевым собственником и становится индивидуальным собственником.
Новому наделу понадобится присвоить отдельный адрес. Для этого индивидуальному собственнику потребуется обратиться в местную муниципальную службу лично или посредством своего представителя (при наличии доверенности, заверенной нотариально). Сюда необходимо подать заявление, содержащее следующие данные:
- ФИО и должность сотрудника-адресата;
- ФИО, адрес проживания и контактный телефон заявителя;
- просьба о присвоении адреса земельному участку;
- перечень прилагаемых документов;
- дата составления и подпись.
Заявление понадобится дополнить копиями материалов процессуального характера – это:
- гражданский паспорт заявителя;
- межевой план;
- выписка из Росреестра, содержащая описание исходного надела и указание его собственников;
- соглашение дольщиков или постановление суда о размежевании земли и разделении надела.
Оформление права собственности
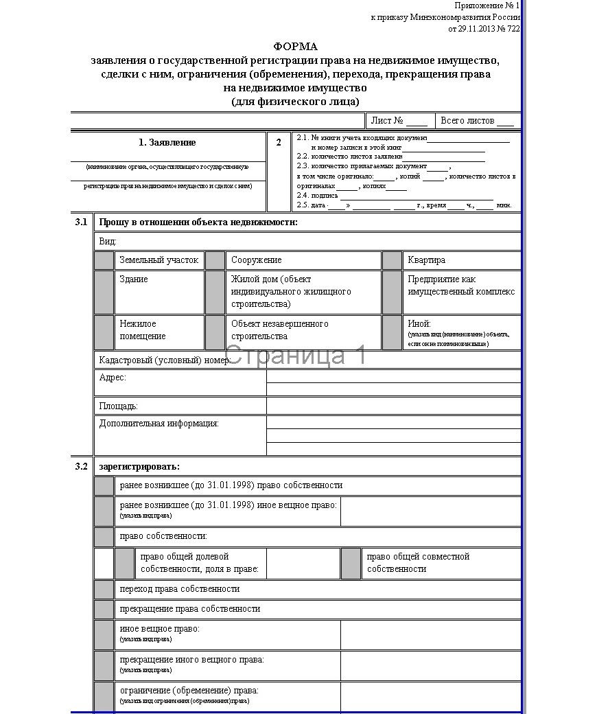
Индивидуальному собственнику потребуется в обязательном порядке оформить право землевладения и поставить участок на кадастровый учет. Регистрация права собственности осуществляется в местном отделении Росреестра, в МФЦ, а также на портале Госуслуг или на портале Росреестра. Вне зависимости от того, в какой форме (бумажной или электронной) будет составляться заявление, здесь понадобится отразить следующие сведения:
- вид и характеристики объекта;
- персональные сведения о правообладателе;
- основание для возникновения права собственности;
- указание способа подачи документов, их перечень (соглашение бывших собственников исходного участка или постановление суда о проведении размежевания, план межевания, акт об установке межевых знаков, акт согласования границ с соседями, квитанция об оплате государственной пошлины, устанавливаемой в ст. 333.33 Налогового кодекса РФ);
- указание способа получения ответа;
- дата заполнения и подпись заявителя (будущего собственника) с полной расшифровкой.
Пример
На практике владельцы земельных участков обращаются к услуге межевания достаточно часто. Благодаря этой процедуре собственники получают возможность единолично и свободно владеть, пользоваться и распоряжаться принадлежащим им объектом недвижимости в рамках действующего законодательства.
Пример. Гражданин Н. и гражданка А. заключили добровольное соглашение о проведении межевания общего земельного участка и о его разделении. Согласно договору купли-продажи, на долю мужчины приходилась 1/3 часть от всего надела, а на долю женщины – 2/3 части. Собственники пригласили для проведения межевых работ аккредитованного специалиста, который выполнил задачу в соответствии с нормами.
Так, 2 вновь образовавшихся участка отвечали установленным региональным нормам – по своей площади они оказались не меньше и не больше тех границ, которые были определены в субъекте для земель такого типа. Кроме того, каждый из наделов имел подъезд к дороге и правильную форму. Наложение на соседние земли отсутствовало. Все, что оставалось сделать гражданину Н. и гражданке А. после проведения межевания – присвоить своим участкам отдельные адреса, поставить их на кадастровый учет и зарегистрировать на них право собственности.
Межевание (размежевание) земли сопровождается множеством нюансов правового характера. Человеку, который решит выделить из общего участка свою долю, понадобится не только договориться с другими владельцами, но и выбрать грамотного подрядчика, проследить за соблюдением норм и регламентов, а также правильно зарегистрировать возникшее право собственности. Не знаете, с чего начать процесс по размежеванию территорию? Обратитесь за бесплатной консультацией к юристу сайта os-nasledstvo.com и получите ответы на имеющиеся вопросы.





